Création d’une salle plénière, d’ateliers techniques, et aménagements extérieurs
Les Scouts et Guides de France développent un projet de transformation complète de leur centre d’activités et de formation, situé dans le Vexin, à Jambville.
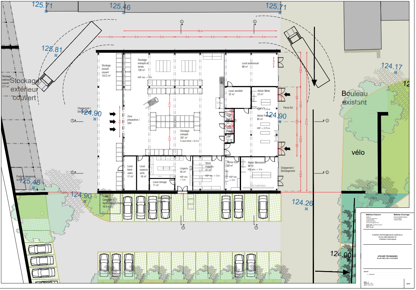
La première phase de ce projet consiste en la création d’une salle polyvalente de 800m², permettant d’accueillir les grands événements de l’association, la création d’ateliers de 1000 m² pour tous les besoins techniques et logistiques du site, et des aménagements paysagers sur près d’1 hA.
Les bâtiments proposés utilisent les principes du bioclimatisme, et favorisent l’utilisation de matériaux écologiques, comme la paille, le bois et la terre, et les fournitures de réemploi, charpente métallique, bardages, pierre, etc. Une partie du projet sera réalisée en chantier participatif avec les bénévoles de l’association et de formation avec les scouts et guides.


Fiche technique
Objet : Création d’une salle plénière, d’ateliers techniques et d’aménagements extérieurs
Maîtrise d’œuvre : Atelier +1
Maîtrise d’ouvrage : Association Scouts et Guides de France
Lieu : Jambville (78)
Livraison : 2022
État :
Surface : 1 800 m²
Montant opération : 3 M€
Équipe : UOA – Octa paysagistes – Sodeba-Ginko
Partenaires:

La salle plénière







Les ateliers techniques




