Rénovation d’une maison sur cour pour une famille dans le 18ème arrondissement de Paris.
Ayant vécu de nombreuses évolutions, cette maison en pan de bois datant du XIXème a été transformée au fil des années pour s’adapter aux nouvelles occupations. Toujours occupée par des ateliers/bureaux et un appartement, la construction retrouve aujourd’hui une nouvelle fonction comme une seule maison familiale.
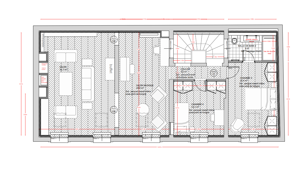
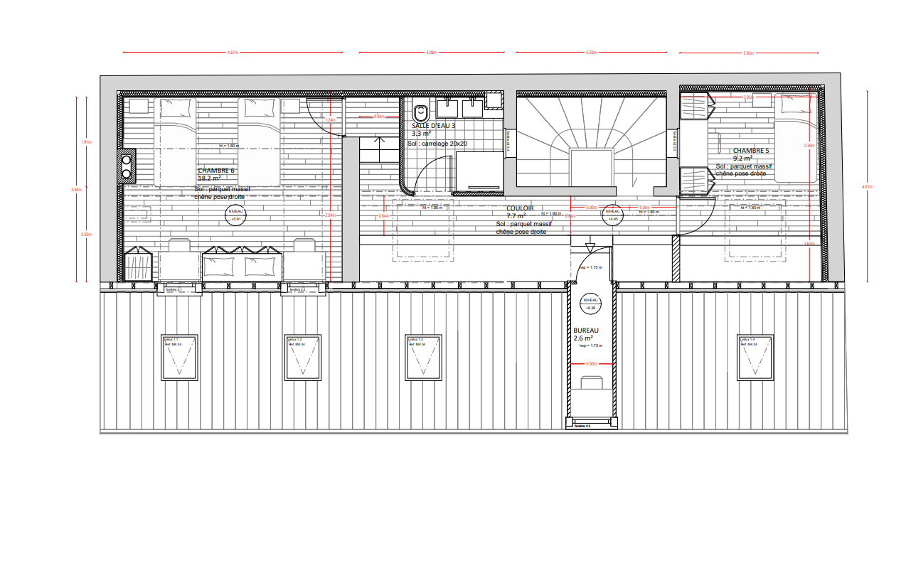
Le projet consiste en la réorganisation des volumes qui avaient été morcelés dans le temps tout en conservant l’essence et la structure de la maison.
Une courette centrale devient le support de l’escalier qui desservira tous les niveaux sous un puits de lumière. Pendant le chantier, la structure de la maison se révèle en ouvrant de nouvelles pistes pour le projet.












Objet : Rénovation d’une maison sur cour
Maîtrise d’œuvre :
Maîtrise d’ouvrage : Client privé
Lieu : 75018 Paris
Livraison : 2024
État :
Surface : 300 m²
Montant opération : NC €
Équipe : Antoine Schott – BE structure, Constance Maurier – BE thermique
Partenaires:
