Etude de programmation et de faisabilité en amont d’une opération de restructuration du centre d’hébergement Pauline Roland
Le centre d’hébergement d’urgence Pauline Roland (180 places), datant des années 70, doit être réaménagé à horizon 2030. Une rénovation thermique globale est prévue, ainsi qu’une réorganisation complète des hébergements, et des espaces afférents (bureaux, restauration solidaire, etc.)

Le projet, réalisé en site occupé, sera une opération-tiroir, avec une rénovation phasée par étage.
La Ville de Paris a souhaité réaliser cette étude de manière concertée avec les résident.e.s, les professionnel.le.s et les partenaires. Les premières phases du projet, concertation et faisabilité, ont été menées pendant l’année 2024.
Méthodologie et phasage de la mission

Ateliers de concertation avec les resident.es
Nous avons conçu et mené des ateliers de diagnostic avec 5 groupes d’acteur.ice.s différencié.e.s : les professionnel.le.s, les résident.e.s, les jeunes, les partenaires.
La co-conception était le centre de ces ateliers,où nous avons pu utiliser des outils graphiques variés :
- plans
- axonométries
- diagrammes
- fabrication de tampons
- jeux de rôles
- maquette…




Développement des scénarios
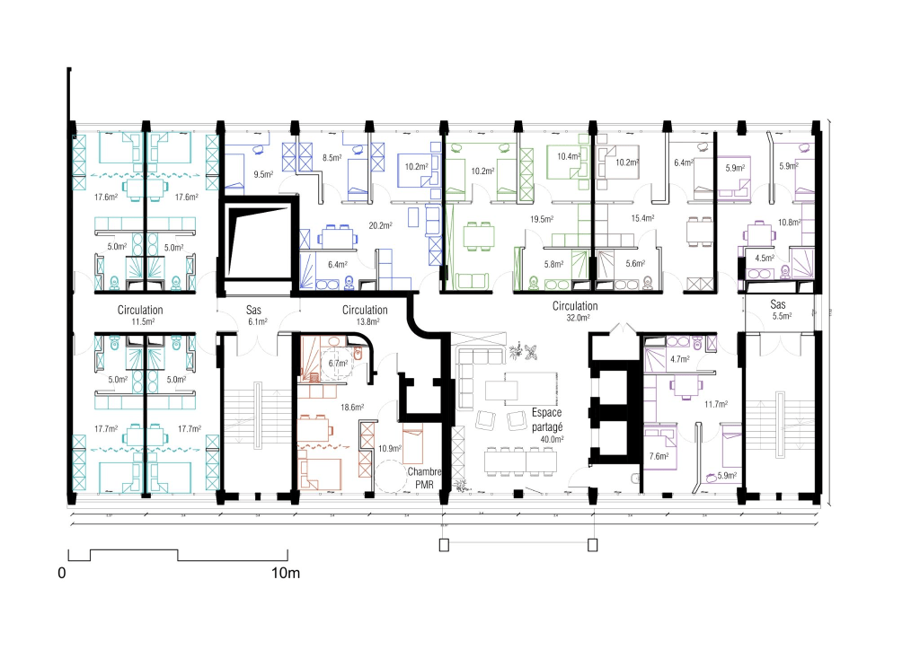
A partir du diagnostic architectural et des ateliers participatifs menés avec tou.te.s les acteur.ice.s, nous avons pu développer 3 scénarios distincts. Ils présentaient cependant des bases communes : une plus forte adaptabilité des logements, une nouvelle réflexion sur la circulation intérieure des bâtiments, un réaménagement des espaces extérieurs, une rénovation thermique par l’extérieur. Tous ces scénarios se dérouleraient en site occupé, avec une logique de travaux dite en « opération tiroir ».
Les scénarios se différencient par leur répartition par étage, où les logements, les bureaux et espaces communs se répartissent autrement suivant les scénarios.




Objet : Étude de programmation et de faisabilité
Maîtrise d’oeuvre : A+1
Commanditaire : Maîtrise d’ouvrage : Centre d’Action Sociale de la Ville de Paris
Lieu : Paris 75019
État : Étude terminée
Surface : 8 195 m²
Montant opération : NC
Équipe : Atelier +1, Albert & Cie
