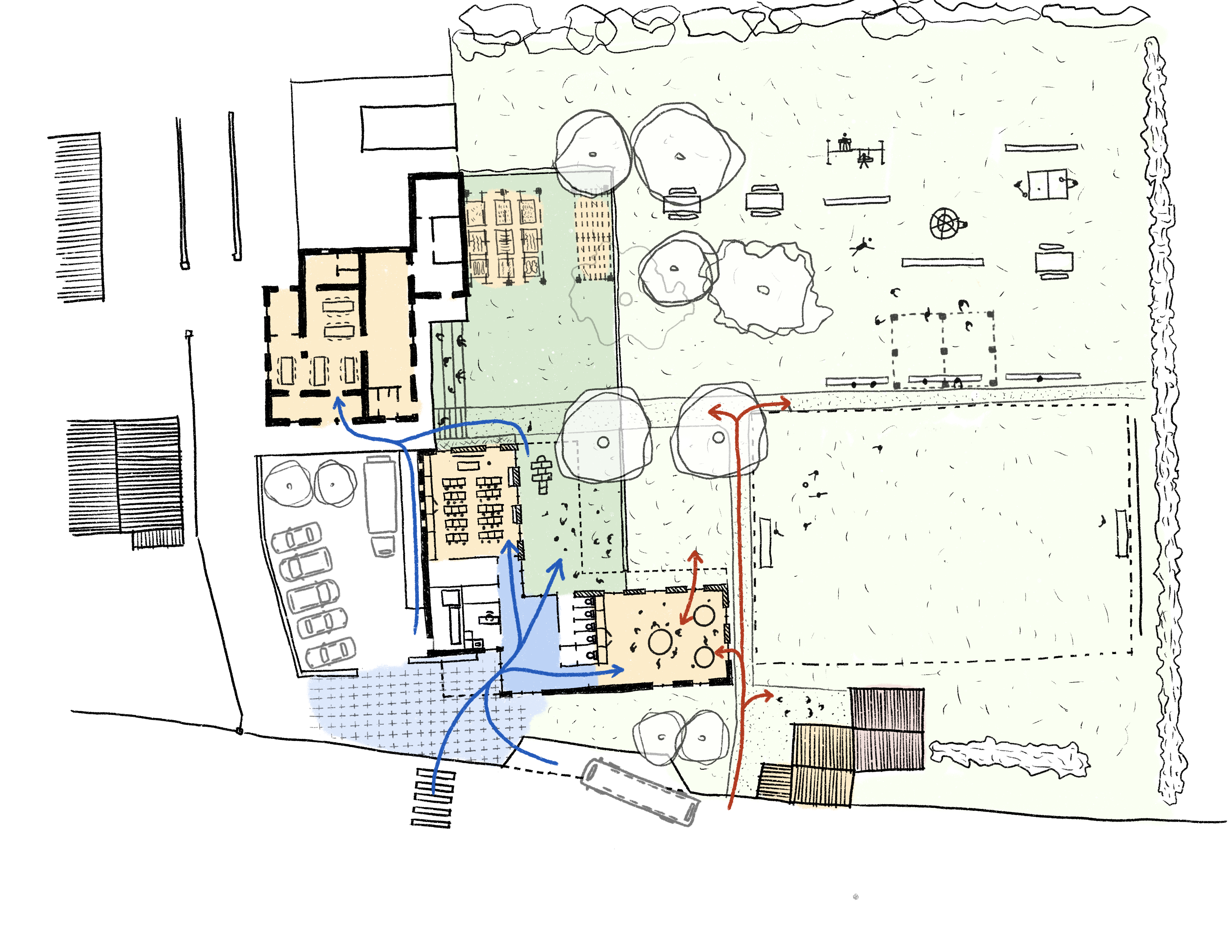
La Mairie de Saint-Martin-de-Castillon souhaite construire une nouvelle école primaire dans sa commune, qui réponde aux besoins actuels de ses usagers : effectifs grandissants, nécessité de faciliter l’accessibilité du site pour les communes voisines, volonté de créer un espace repère, vivant et citoyen sur le territoire, souhait d’occuper un bâtiment performant (thermique, ventilation, matérialités…) et de disposer d’espaces extérieurs adaptés pour les enfants.



Au cœur des enjeux contemporains, ce projet démonstrateur est conçu en matériaux locaux et durables (mur à ossature bois avec isolation en botte de paille, toiture en tuile canal), et offre une qualité de vie optimale grâce à un plan fonctionnel, une centralisation des espaces pédagogiques et à un lien direct avec son environnement. Il est pensé comme un lieu de transmission, faisant lien et a ainsi pour ambition de s’insérer harmonieusement dans son contexte.
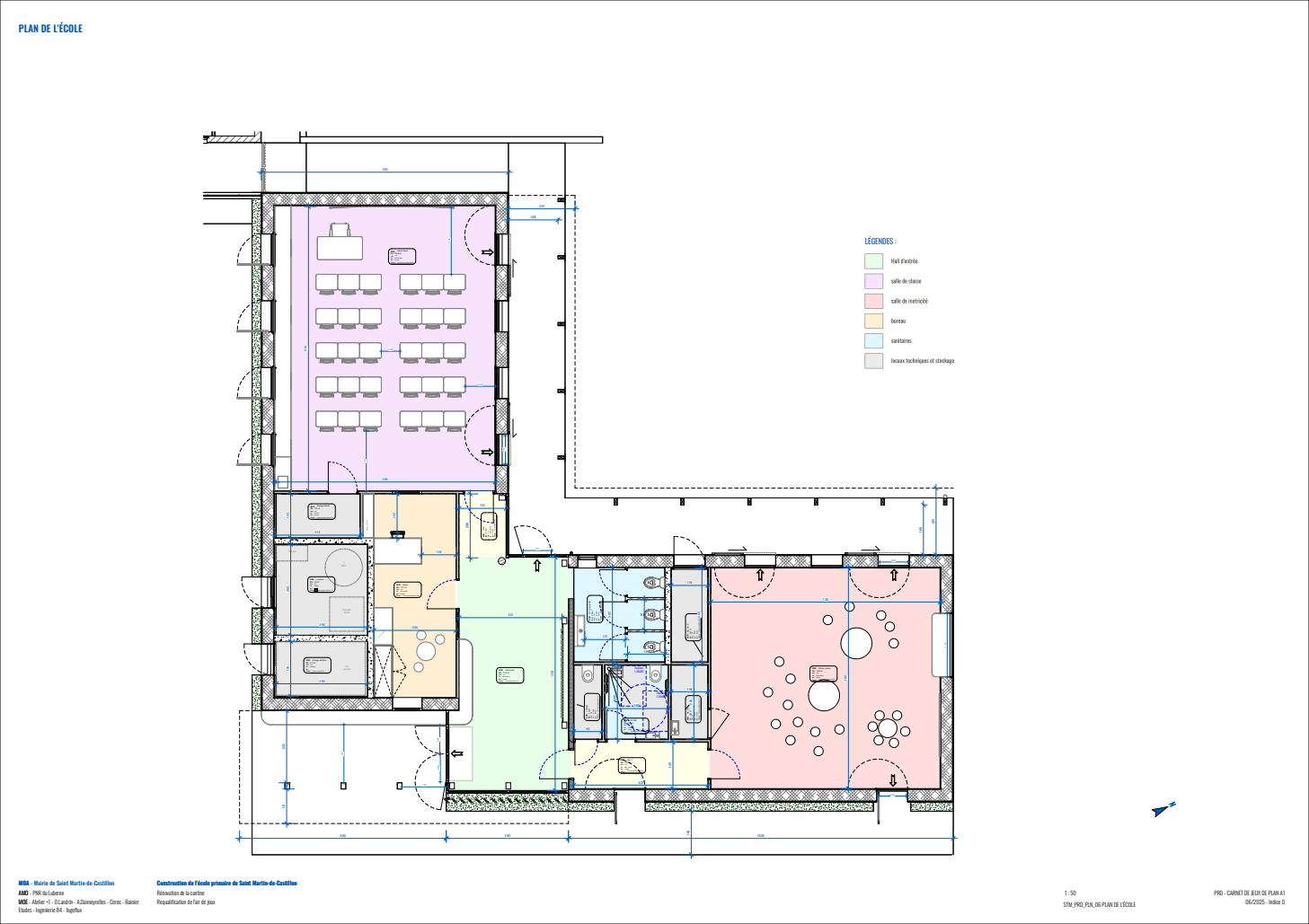
L’école propose des espaces ajustés, appropriables et adaptables aux besoins des futurs utilisateurs. Pour être confortables, les différents espaces intérieurs prennent des proportions raisonnables se rapprochant des espaces du “chez soi”.

Documents graphiques :
Objet : Construction d’une école primaire
Maîtrise d’oeuvre : Atelier + un et Olivier Landrin
Maîtrise d’ouvrage : Mairie de Saint-Martin-de-Castillon
Lieu : Saint-Martin-de-Castillon
Livraison : Prévue sept. 2026
État : Début du chantier novembre 2025
Surface : 212 m²
Montant opération : 800 K€ HT
Équipe : Olivier Landrin – Architecte associé
Cerec – Economiste
Bainier Etudes – BET Structure
Ingenierie 84 – BET Structure
Ingeflux – BET Fluides
Alice Danneyrolles – Graphiste-illustratrice





